

최대4회로까지 조명 ON/OFF 제어를
손쉽게 할 수 있습니다.
일반 콘센트와 바로 연결하여
사용할 수 있습니다.
대기전력콘센트와 연결된 가전기기의
소비전력량을 실시간으로 확인할 수 있으며,
차단하고자 하는 대기전력 값을
간편하게 저장할 수 있습니다.
RS485통신 국내 유수 홈네트워크
서비스와 완벽한 통신호환 제공합니다..

AC 220V~, 60Hz
콘센트 16A(2회로), 조명2.5A(회로당)
0'c~60'c, 20%~90%(단,이슬이 맺히지 않을것)
0.1W ~ 3,500W
RS 485 (홈네트워크와 연동, 외부제어 가능)
벽면 매립형
2구형 스위치 박스
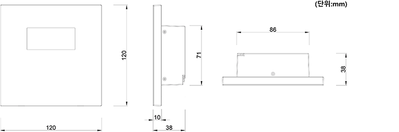
120(W) x 120(H) x 38(D) [mm]
조명 1회로, 콘센트 2회로
조명 2회로, 콘센트 2회로
조명 3회로, 콘센트 2회로
조명 4회로, 콘센트 2회로



최대4회로까지 조명 ON/OFF 제어를
손쉽게 할 수 있습니다.
일반 콘센트와 바로 연결하여
사용할 수 있습니다.
대기전력콘센트와 연결된 가전기기의
소비전력량을 실시간으로 확인할 수 있으며,
차단하고자 하는 대기전력 값을
간편하게 저장할 수 있습니다.
RS485통신 국내 유수 홈네트워크
서비스와 완벽한 통신호환 제공합니다..

AC 220V~, 60Hz
콘센트 16A(2회로), 조명2.5A(회로당)
0'c~60'c, 20%~90%(단,이슬이 맺히지 않을것)
0.1W ~ 3,500W
RS 485 (홈네트워크와 연동, 외부제어 가능)
벽면 매립형
2구형 스위치 박스
120(W) x 120(H) x 38(D) [mm]
조명 1회로, 콘센트 2회로
조명 1회로, 콘센트 2회로, 디밍
조명 2회로, 콘센트 2회로
조명 2회로, 콘센트 2회로, 디밍
조명 3회로, 콘센트 2회로
조명 3회로, 콘센트 2회로, 디밍
조명 4회로, 콘센트 2회로
조명 4회로, 콘센트 2회로, 디밍